Projeto de uma residência na região serrana de Minas Gerais cujas premissas foram de gerar o mínimo de impacto ao meio físico e utilizar estruturas pré fabricadas que permitissem agilidade de montagem, modulação e minimização de resíduos.

A estrutura é de madeira laminada colada, produto de reflorestamento, e os fechamentos de placas cimentícias de madeira mineralizada.

 

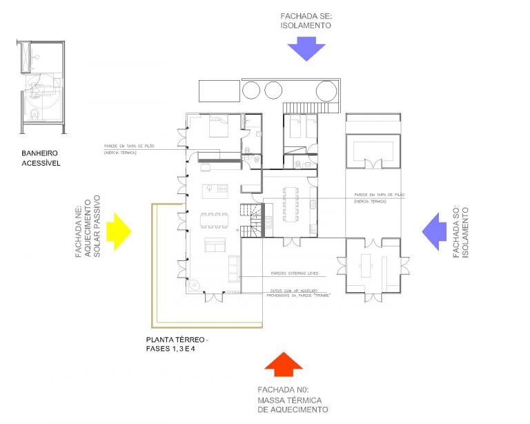
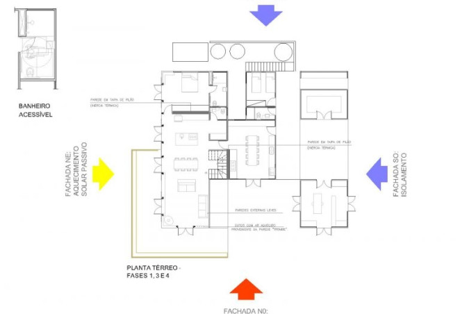
Foram adotadas para o projeto estratégias de conforto para a Zona Bioclimática 2: aquecimento artificial, orientação da edificação de forma a absorver a radiação solar, adoção de paredes internas pesadas (taipa de pilão), desumidificação (por meio da ventilação), vedações externas leves e cobertura leve isolada. O aquecimento se dá também de forma passiva por meio de “paredes trombe” compostas por uma superfície de pedra coberta por um vidro; a radiação que atravessa o vidro é armazenada pela pedra e irradiada para o ar contido entre estas superfícies, o qual é conduzido para dentro da edificação por meio de dutos de ar.

  • Os beirais também foram dimensionados de forma a proteger as fachadas da insolação direta nos horários indicados pelas cartas solares.
  • A desumidificação é propiciada pela ventilação cruzada onde o sistema de abertura das esquadrias permite uma renovação de ar (ventilação higiênica) mesmo com as portas fechadas.

O projeto foi pensado em um sistema modular (módulos de 60 x 60 cm) que permite a racionalização dos usos de materiais assim como a elaboração da obra em etapas, permitindo um plano de expansão planejado. Dadas as características do local (que não é servido por coleta de resíduos), o sistema modular ainda favorece a minimização de resíduos.

Para a pintura foi especificada uma tinta à base de terra que propicia conforto higrotérmico e contribui para a qualidade do ar interno.